| NIVEAU | PIÈCE | SURFACE |
- 116 m²
- 4 pièce(s)
- NC chambre(s)
- NC
BEZIERS - CHARLES DE GAULLE, proche de toutes les commodités citadines.
Dans l'immeuble Art Déco MANDEL (ancien immeuble PTT) entièrement réhabilité dans les régles de l'art, les normes actuelles et dans l'esprit Art Déco - Factory (façades, toitures, menuiseries, sols, murs, éléctricité, plomberie, déco, cages d'escaliers et ascenseur).,
SEULEMENT 5 appartements !!
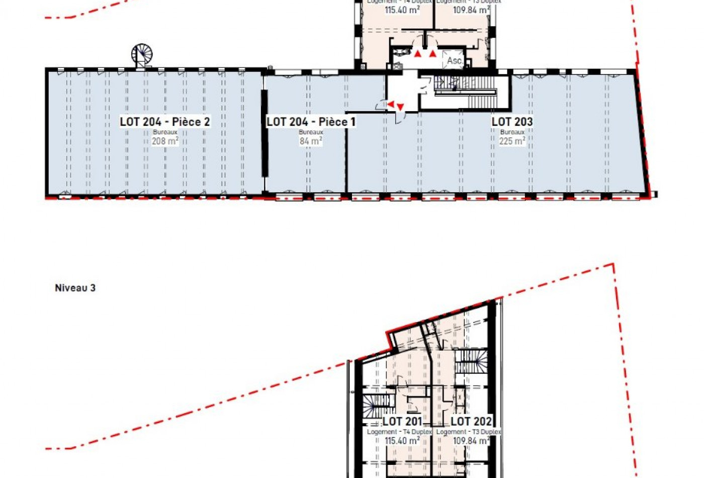
Nous vous proposons l'appartement duplex n°201 de haut standing - 4 pièces au 2ème et dernier étage avec ascenseur de 116,53 m² habitables, vendu avec 2 parkings privatifs.
Un appartement aux volumes généreux, offrant de belles hauteurs sous plafond et de vaste pièces de vie. Une luminosité naturelle optimale grâce à de grande ouvertures et des configurations aérées. Un confort pensé au quotidien avec des agencements fonctionnels, des espaces bien définis et des prestations de qualité.
Conçu pour s'adapter aux modes de vie actuels, alliant bien-être, praticité et qulité d'habitat. Vous en prendrez possession en mars 2027. Surface CARREZ : 116.53 m²
Bien soumis au statut juridique de la copropriété. Nb de lot :12. Charges annuelles de copropriété (Montant moyen annuel quote-part du budget prévisionnel vendeur) : 1980.00 €.
* Honoraires charge vendeur.
(Bien faisant état d'une délégation de mandat)
Diagnostics de performance énergétique
À proximité de ce bien ...
Découvrez nos biens similaires ...
cette annonce à un ami
Veuillez réessayer à nouveau


















